ميدان الثقافة
أوركو سانشيز معماريون
جدة | المملكة العربية السعودية
Jeddah Culture Square: Where Heritage Meets the Future
At the heart of the Historic Jeddah Waterfront Regeneration Initiative, the Culture Square stands as a bold statement of renewal, an intersection where memory, art, and urban transformation converge. The project reimagines the northern edge of Al Arbaeen Lagoon, facing Al-Balad, Jeddah’s storied historic district, and forms part of a larger vision to turn the lagoon’s perimeter into a sustainable, mixed-use urban hub.
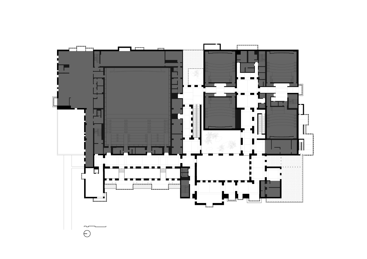
Anchoring the new public promenade, two sculptural buildings rise at the water’s edge, one housing the Red Sea International Film Festival, the other the teamLab Borderless Jeddah Art Museum. Together, they establish a contemporary dialogue with the old city architecture, framing a new cultural horizon for Jeddah. More than simple venues, these structures act as catalysts for exchange, places where the city’s deep artistic heritage meets global creative energy.
The square itself is conceived as a living civic space, a transition zone between land and lagoon, public realm and cultural institution. The promenade flows through open plazas, shaded corridors, and reflective pools, inviting residents and visitors alike to inhabit the city’s new cultural front.







The design takes deep cues from Jeddah’s architectural DNA, reinterpreting the roshan, the city’s traditional wooden lattice screen, in a radical new way. Inside, the roshans unfold in copper, giving the interiors a warm, futuristic glow. The metal surfaces catch and diffuse the natural light, transforming the texture of the spaces throughout the day. This bold material choice turns a centuries-old typology into something visionary, a shimmering network of pattern, light, and reflection that speaks of both legacy and progress.
Externally, the architecture bridges the tactile richness of Jeddah’s vernacular façades with contemporary spatial logic. Local, handcrafted wood meet advanced fabrication methods; the interplay of mass and transparency evokes the timeless rhythm of the old city, while projecting it into a distinctly modern context.
Every detail of the intervention, from the façades to the interiors of the cinema venue, reflects a deliberate balance: handcrafted materials sit alongside modern structural systems, while vernacular motifs are translated into contemporary geometries. This interplay defines a new architectural grammar for the region, one that looks forward without letting go of its roots.
In Culture Square, the spirit of Al-Balad endures, refracted through glass, light, and time, inviting the world to experience the next chapter of Jeddah’s cultural renaissance.









Process: https://vimeo.com/manage/videos/1040061368
Completed: https://vimeo.com/manage/videos/1109698743
Architectural Drawings












Location Jeddah, KSA
Competition 2025
Area 28.000 sqm
Program Cultural Facility
Office Urko Sánchez Architects
Lead Architect Marwan Zouein
Team Member Estrella de Andrés, Alfredo Entrala, Eloy Fernanz, Carmen Gamboa,
Malena Martus, Victor Mascato, Manuel Merino, Borja Pérez,
Pilar Riesco, Fernando Rodriguez, Guillermo Palenzuela
Site Management MIDRAR
Construction Freyssinet Saudi
Lighting Design Elbaz + Gil de Montes
Interior Design Nada Debs Studio
Landscape Design Walk Architects (Juan Tur)
Acoustics TMA
Photographs ©Arch-Exist
Office Website/Social Media @Urko Sanchez Architects